Друзья!
Официальных форумов и групп Вконтакте ЖК "Инновация" - нет! Этот форум создан жильцами ЖК Инновация.
Здесь размещена краткая и структурированная информация по ЖК "Инновация". Общение и самые свежие фотки - только в чатах WhatsApp и Telegram.

Самое важное:

Планировка 4-го корпуса

Ответить
Аватара пользователя
Jirvil
Site Admin
Сообщения: 105
Зарегистрирован: 05 сен 2019, 15:28
Корпус: 3
Поблагодарили: 2 раза

Планировка 4-го корпуса

Сообщение Jirvil » 05 июн 2020, 16:56

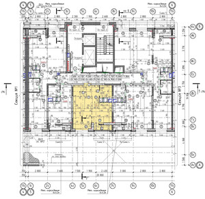
Общая планировка второго корпуса из рекламных материалов Гранеля.

plans_4k_Page_2_WEB.jpg plans_4k_Page_1_WEB.jpg

Всего в корпусе 3 жилых секции (подъезда) и 1 секция с апартаментами.

Что важно знать:
  • Окончательные, точные, вплоть до миллиметра, размеры своей квартиры вы узнаете только при приемке;
  • Проектные размеры, то есть те, которые должны построить строители по проекту, вам предоставит застройщик не ранее, чем за полгода до сдачи дома. Для четвертого корпуса точная дата пока не известна, но примерно с июля 2020 года можно задать этот вопрос Гранелю;
  • Приблизительные размеры комнат можно посчитать самостоятельно - по чертежам и проектной документации, или обратиться в чат - возможно, кто-то уже обмерял такую же квартиру, как и ваша.
  • Очень(!) важно понимать, что по всем корпусам сейчас могут быть только приблизительные размеры, потому что строители не могут налить сто тонн бетона с точностью до миллиметра даже по самому лучшему проекту.
Максим. Telegram, WhatsApp: +7 (977) 980-13-36
Аватара пользователя
Jirvil
Site Admin
Сообщения: 105
Зарегистрирован: 05 сен 2019, 15:28
Корпус: 3
Поблагодарили: 2 раза

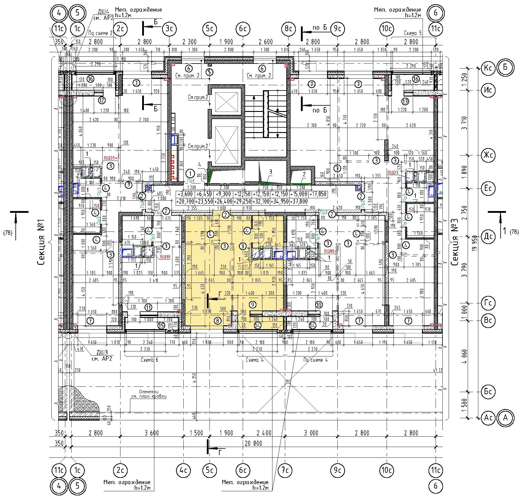
Re: Планировка 4-го корпуса

Сообщение Jirvil » 27 ноя 2020, 10:40

Проектные размеры второй секции. Но учитывая, что все три секции дома одинаковые, можно считать, что это общая планировка.

ИН-к.4.jpg
Максим. Telegram, WhatsApp: +7 (977) 980-13-36
Ответить