Друзья!
Официальных форумов и групп Вконтакте ЖК "Инновация" - нет! Этот форум создан жильцами ЖК Инновация.
Здесь размещена краткая и структурированная информация по ЖК "Инновация". Общение и самые свежие фотки - только в чатах WhatsApp и Telegram.

Самое важное:

Планировка 2-го корпуса

Ответить
Аватара пользователя
Jirvil
Site Admin
Сообщения: 105
Зарегистрирован: 05 сен 2019, 15:28
Корпус: 3
Поблагодарили: 2 раза

Планировка 2-го корпуса

Сообщение Jirvil » 23 сен 2019, 15:43

Общая планировка второго корпуса из рекламных материалов Гранеля. К сожалению, только одна чать пока.

plans_2k.jpg

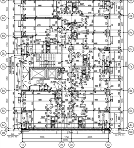
Всего в корпусе 7 секций (подъездов) и 862 квартиры.

Что важно знать:
  • Окончательные, точные, вплоть до миллиметра, размеры своей квартиры вы узнаете только при приемке;
  • Проектные размеры, то есть те, которые должны построить строители по проекту, вам предоставит застройщик не ранее, чем за полгода до сдачи дома. Для второго корпуса это примерно май 2020 года;
  • Приблизительные размеры комнат можно посчитать самостоятельно - по чертежам и проектной документации, или обратиться в чат - возможно, кто-то уже обмерял такую же квартиру, как и ваша.
  • Очень(!) важно понимать, что по всем корпусам сейчас могут быть только приблизительные размеры, потому что строители не могут налить сто тонн бетона с точностью до миллиметра даже по самому лучшему проекту. Если интересно - пишите в WhatsApp или Telegram.
Максим. Telegram, WhatsApp: +7 (977) 980-13-36
Аватара пользователя
ESoft
Сообщения: 1
Зарегистрирован: 17 апр 2020, 17:53
Корпус: 2

Re: Планировка 2-го корпуса

Сообщение ESoft » 17 апр 2020, 17:58

Добрый день!
подскажите пожалуйста, есть ли у кого-нибудь схема расположения квартир во 2-м корпусе, секции 6?
clawbug
Сообщения: 1
Зарегистрирован: 30 авг 2020, 10:15
Корпус: 2

Re: Планировка 2-го корпуса

Сообщение clawbug » 30 авг 2020, 10:31

2 корпус 5-6-7.jpg

Добавил картинку западной половины.
Аватара пользователя
Jirvil
Site Admin
Сообщения: 105
Зарегистрирован: 05 сен 2019, 15:28
Корпус: 3
Поблагодарили: 2 раза

Re: Планировка 2-го корпуса

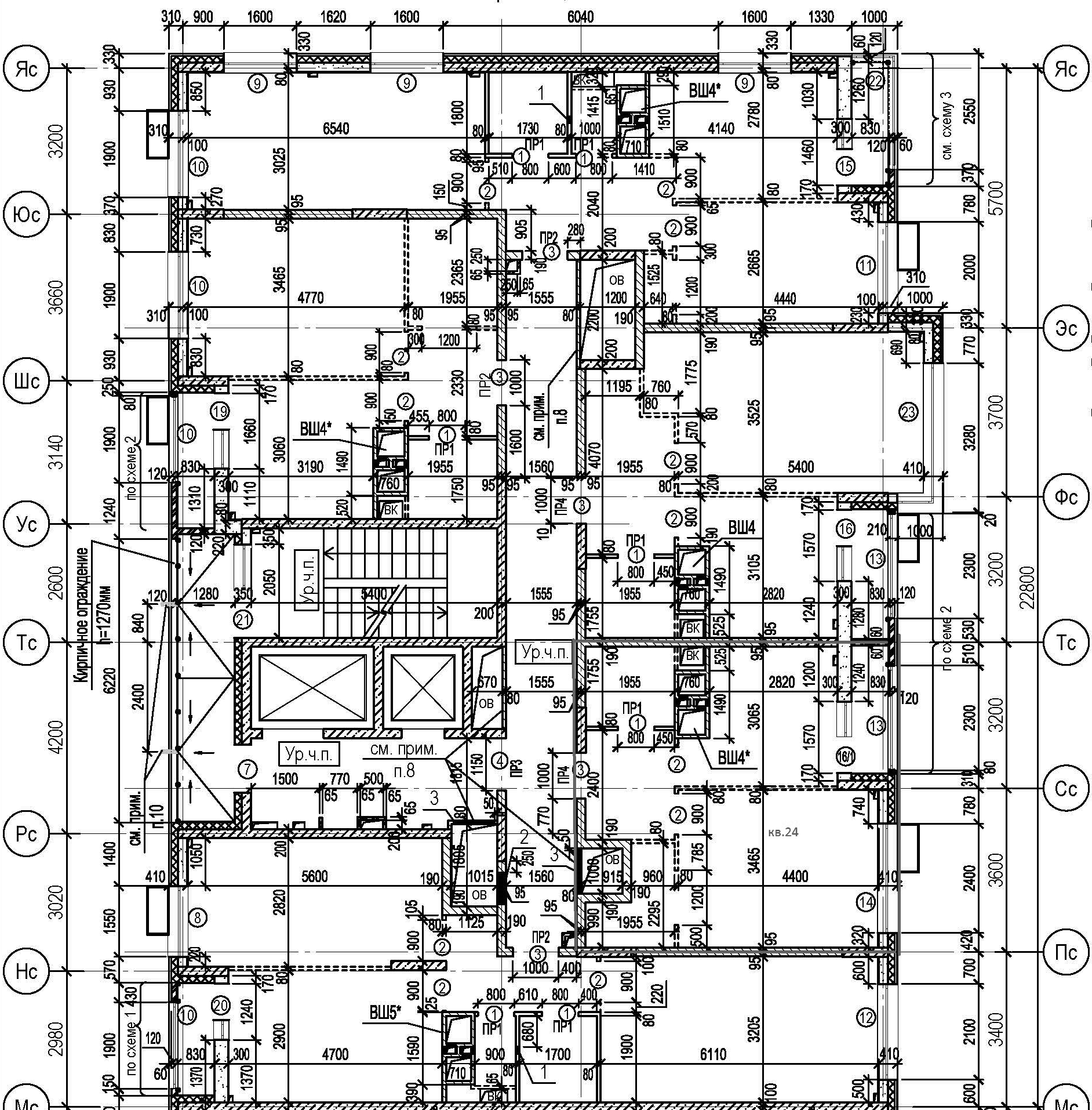
Сообщение Jirvil » 25 ноя 2020, 00:28

Проектные размеры 6-й секции второго корпуса

ИН-К2.png
Максим. Telegram, WhatsApp: +7 (977) 980-13-36
Аватара пользователя
Jirvil
Site Admin
Сообщения: 105
Зарегистрирован: 05 сен 2019, 15:28
Корпус: 3
Поблагодарили: 2 раза

Re: Планировка 2-го корпуса

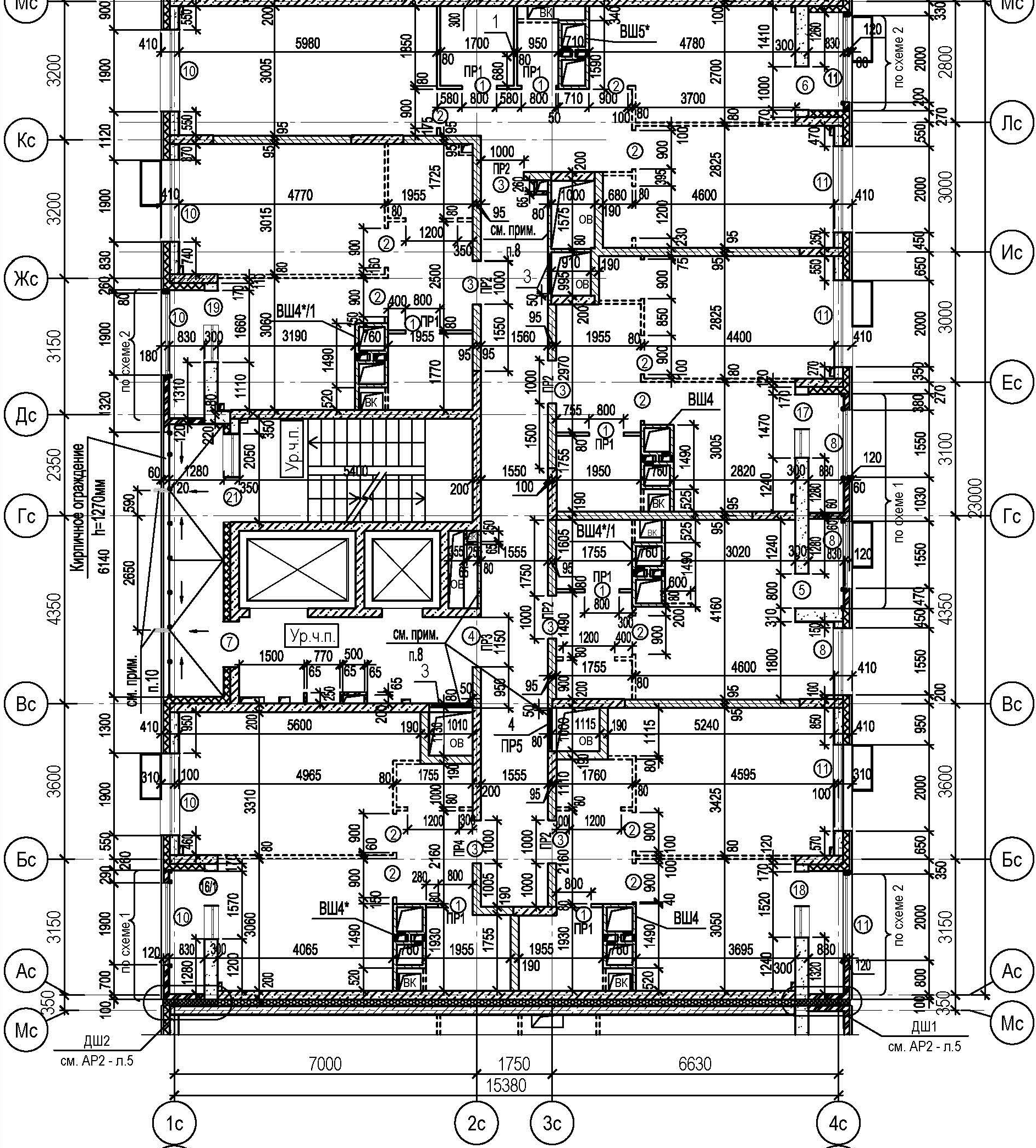
Сообщение Jirvil » 13 дек 2020, 02:13

Проектные размеры первой секции второго корпуса

K2C1.png
Максим. Telegram, WhatsApp: +7 (977) 980-13-36
Аватара пользователя
Jirvil
Site Admin
Сообщения: 105
Зарегистрирован: 05 сен 2019, 15:28
Корпус: 3
Поблагодарили: 2 раза

Re: Планировка 2-го корпуса

Сообщение Jirvil » 13 дек 2020, 02:13

Проектные размеры второй секции второго корпуса

K2C2.png
Максим. Telegram, WhatsApp: +7 (977) 980-13-36
Ответить