Друзья!
Официальных форумов и групп Вконтакте ЖК "Инновация" - нет! Этот форум создан жильцами ЖК Инновация.
Здесь размещена краткая и структурированная информация по ЖК "Инновация". Общение и самые свежие фотки - только в чатах WhatsApp и Telegram.

Самое важное:

Планировка 1-го корпуса

Ответить
Аватара пользователя
Jirvil
Site Admin
Сообщения: 105
Зарегистрирован: 05 сен 2019, 15:28
Корпус: 3
Поблагодарили: 2 раза

Планировка 1-го корпуса

Сообщение Jirvil » 23 сен 2019, 15:43

Общая планировка первого корпуса из рекламных материалов Гранеля. К сожалению, только одна чать пока.

plans_1k.jpg

Всего в корпусе 5 секций (подъездов) и 699 квартир.

Что важно знать:
  • Окончательные, точные, вплоть до миллиметра, размеры своей квартиры вы узнаете только при приемке;
  • Проектные размеры, то есть те, которые должны построить строители по проекту, вам предоставит застройщик не ранее, чем за полгода до сдачи дома. Для первого корпуса эти данные можно попросить уже сейчас. Для этого нужно написать запрос на почту secretariat@granelle.ru;
  • Приблизительные размеры комнат можно посчитать самостоятельно - по чертежам и проектной документации, или обратиться в чат - возможно, кто-то уже обмерял такую же квартиру, как и ваша.
  • Очень(!) важно понимать, что по всем корпусам сейчас могут быть только приблизительные размеры, потому что строители не могут налить сто тонн бетона с точностью до миллиметра даже по самому лучшему проекту. Если интересно - пишите в WhatsApp или Telegram.
Максим. Telegram, WhatsApp: +7 (977) 980-13-36
Аватара пользователя
Jirvil
Site Admin
Сообщения: 105
Зарегистрирован: 05 сен 2019, 15:28
Корпус: 3
Поблагодарили: 2 раза

Re: Планировка 1-го корпуса

Сообщение Jirvil » 09 дек 2020, 19:53

Проектные размеры четвертой секции первого корпуса

K1C4.png
Максим. Telegram, WhatsApp: +7 (977) 980-13-36
Аватара пользователя
Jirvil
Site Admin
Сообщения: 105
Зарегистрирован: 05 сен 2019, 15:28
Корпус: 3
Поблагодарили: 2 раза

Re: Планировка 1-го корпуса

Сообщение Jirvil » 11 дек 2020, 13:24

Проектные размеры третьей секции первого корпуса

K1C3.png
Максим. Telegram, WhatsApp: +7 (977) 980-13-36
Аватара пользователя
Jirvil
Site Admin
Сообщения: 105
Зарегистрирован: 05 сен 2019, 15:28
Корпус: 3
Поблагодарили: 2 раза

Re: Планировка 1-го корпуса

Сообщение Jirvil » 11 дек 2020, 13:30

Проектные размеры пятой секции первого корпуса

K1C5.png
Максим. Telegram, WhatsApp: +7 (977) 980-13-36
Аватара пользователя
Jirvil
Site Admin
Сообщения: 105
Зарегистрирован: 05 сен 2019, 15:28
Корпус: 3
Поблагодарили: 2 раза

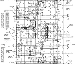
Re: Планировка 1-го корпуса

Сообщение Jirvil » 13 дек 2020, 02:06

Проектные размеры второй секции первого корпуса

K1C2.png
Максим. Telegram, WhatsApp: +7 (977) 980-13-36
Аватара пользователя
Jirvil
Site Admin
Сообщения: 105
Зарегистрирован: 05 сен 2019, 15:28
Корпус: 3
Поблагодарили: 2 раза

Re: Планировка 1-го корпуса

Сообщение Jirvil » 13 дек 2020, 02:06

Проектные размеры первой секции первого корпуса

K1C1.png
Максим. Telegram, WhatsApp: +7 (977) 980-13-36
Ответить